Model Number
-
1
DFHT1843MW3
-
2
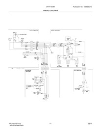
Select a section diagram for - DFHT1843MW3
-
3
Loading parts of sections





